Isoleret træhus Kaia
Minimalistisk og moderne i sit udtryk er det isolerede træhus Kaia en stilfuld bolig med 2 rummelige soveværelser, en åben stue med køkken og fuldhøje vinduer, der giver panoramaudsigt. Planløsningen forener komfort og funktionalitet, ideel til både hverdagsliv og rolige ophold.
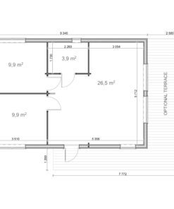
📐 Isoleret træhus Kaia 9,34 × 6,14 m — Tekniske specifikationer
| Bygningsbredde × længde | 9,34 × 6,14 m |
| Indvendigt areal | 50 m² (4 rum) |
| Ruminddeling | Stue 26,5 m²; Soveværelse 9,9 m²; Soveværelse 9,9 m²; Badeværelse 3,9 m² |
| Sidevægshøjde | 2,43 m |
| Tagrygshøjde | 3,38 m |
| Taghældning (pr. side) | ~18,3° |
| Tagareal | 60,04 m² |
| Tagbrædder | 19 mm T&G (fer og not) |
| 🧱 Vægopbygning (inde → ude) | 44 mm massiv bjælke → 100 mm isolering → 25 mm OSB → 25 mm ventileret hulrum → åndbar membran → 19 mm lodret træbeklædning |
| 🪵 Gulvopbygning | 19 mm T&G gulvbrædder → bærende bjælker → ~100 mm isolering → dampspærre/vindtætning (på beton: plastmembran, strøer, isolering) |
| 🏠 Tagopbygning | Bitumen shingles → lægter & underlag → åndbar membran → ~100 mm isolering → 19 mm T&G tagbrædder |
| Vejledende U-værdier* | Vægge ~0,30–0,35 W/m²K; Tag ~0,23–0,28; Gulv ~0,30–0,35 |
| Døre | 3 indvendige massivt-træ døre 850×1980 mm (uden tærskel); 1 udvendig fuldglas dør 850×1980 mm (dobbeltrude) |
| Vinduer | 4 × 1700×1980 mm (dobbeltruder, parvise enheder); 3 × 850×1980 mm (fuldhøjde, dobbeltruder); 1 × 500×520 mm (dobbeltrude) |
| Ruder | Premium dobbeltruder |
| Materiale | Certificeret nordisk gran eller fyr |
| Udvendigt vægareal | 64 m² |
| Antal rum | 4 |
*Vejledende termisk ydeevne for de angivne opbygninger; endelige værdier afhænger af pladsforhold, membraner og udførelseskvalitet.
Inkluderet i standardpakken:
- Gulvstrøer, gulv- og tagbrædder, vægge og spær
- Premium Plus termovinduer og døre
- 10 cm tagisoleringspakke
- 10 cm gulvisoleringspakke
- 10 cm vægisoleringspakke
- Bitumenshingel med undertag
- Udvendige metalvindueskarme
🚛 Leveringsbetingelser
Vi tilbyder gratis levering til aflæsningsstedet i:
| 📍 | Jylland, Fyn, Sjælland samt øer forbundet med bro |
| ⚠️ | Modtageren er ansvarlig for aflæsning af varerne |
| 🚚 | Lift eller kran er muligt mod et tillæg |
| 💰 | Alle priser er inkl. moms |
| 🌍 | Vi leverer også til Grønland og Færøerne – her fjernes momsen og levering sker til valgt terminal i Danmark |



























