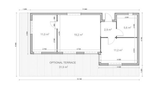
Isoleret Tiny House NORDIC-L 5.74 × 11.94 m
Det Isolerede Tiny House NORDIC-L 5.74 × 11.94 m er et rummeligt, fuldt isoleret L-formet hjem med en stilfuld lodret beklædt facade. Det inkluderer to soveværelser, et badeværelse og en åben stue med store Premium Plus-vinduer, der giver masser af naturligt lys. Bygget af højkvalitets nordisk gran eller fyr med lagdelt isolering og damptæt konstruktion, leverer denne model fremragende energieffektivitet og komfort året rundt.
| Grundmål | 5.74 × 11.94 m |
| Bygningens bredde × længde | 5.74 × 11.94 m |
| Indvendigt areal | 49,9 m² (2 soveværelser + stue + badeværelse) |
| Ruminddeling | Åben stue/køkken; 2 soveværelser; 1 badeværelse |
| Sidevæghøjde | 2.6 m |
| Tagrygshøjde | 3.0 m |
| Taghældning (grader) | ~6.5° |
| Tagareal | 59,3 m² |
| Tagbrædder | 19 mm fer og not |
| 🧱 Vægopbygning (indvendigt → udvendigt) | 44 mm massiv bjælke → dampspærre → ~100 mm Rockwool isolering → vindspærre → ventileret hulrum → 19 mm lodret træbeklædning |
| 🪵 Gulvopbygning | 19 mm fer og not gulvbrædder → bærende bjælker → ~100 mm Rockwool isolering |
| 🏠 Tagopbygning | Tagdækning (EPDM tagdækning) → lægter & undertag → diffusionsåben membran → ~100 mm Rockwool isolering → 19 mm fer og not tagbrædder |
| Indikative U-værdier | Vægge ~0.30–0.35 W/m²K; Tag ~0.23–0.28 W/m²K; Gulv ~0.30–0.35 W/m²K |
| Døre | 1 udvendig glasdør (850 × 1980 mm); 3 indvendige trædøre (850 × 1980 mm) |
| Vinduer | 4 store vinduer (1700 × 1980 mm); 2 fuldhøjde vinduer (850 × 1980 mm); 1 overvindue (1500 × 390 mm); 1 lille vindue (500 × 520 mm) |
| Ruder | Premium Plus termoruder i vinduer og døre |
| Materiale | Certificeret nordisk gran eller fyr |
| Antal rum | 4 |
Inkluderet i standardpakken:
- Gulvbjælker, gulv- og tagbrædder, vægge og tagspær
- Premium Plus termovinduer og døre
- 10 cm tagisoleringskit
- 10 cm gulvisoleringskit
- 10 cm vægisoleringskit
- Tagdækning (EPDM tagdækning)
- Udvendige metal vindueskarme
🚛 Leveringsbetingelser
Vi tilbyder gratis levering til aflæsningsstedet i følgende områder:
| 📍 | Jylland, Fyn, Sjælland samt øer forbundet med bro |
| ⚠️ | Modtageren er ansvarlig for aflæsning af varerne |
| 🚚 | Lift eller kran kan tilvælges mod et tillæg |
| 💰 | Alle priser er inkl. moms |
| 🌍 | Levering til Grønland og Færøerne: Momsen fratrækkes, og vi leverer til valgt terminal i Danmark |




























