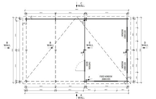
🏡 Tivoli – Dobbelt carport med studie (5.95 × 9.5 m, 44 mm)
Tivoli-modellen er en kvalitetsløsning: en dobbelt carport kombineret med et lyst og fleksibelt studie. Studiet passer perfekt som værksted, havekontor eller kreativ plads. Konstruktionen har et ensidigt tag, 44 mm tykke vægge og integrerede stormbånd. Det giver både styrke og æstetik.
Layoutet kan spejlvendes – studiet kan placeres til venstre eller højre for carporten. Store vinduer og glasdøre lukker dagslys ind. Studiet bliver derfor mere end blot opbevaring. Det fungerer som et inspirerende og brugbart rum i din have. Gulvet i studiet er lavet af robuste 19–20 mm træplanker.
📐Tekniske specifikationer
| Specifikation | Værdi |
|---|---|
| Udvendige mål | 5.95 × 9.50 m |
| Vægtykkelse | 44 mm |
| Tagtype | Ensidigt tag |
| Taghældning | 4,1° |
| Rygningens højde | 2.8 m |
| Væghøjde | 2.30 m |
| Indvendigt areal – studie | ~2.80 × 5.95 m = 16.7 m² |
| Indvendigt areal – carport | ~6.70 × 5.95 m = 39.8 m² |
| Bredde pr. carportåbning | ~2.63 m |
| Materiale | Naturligt gran- eller fyrretræ |
| Spejlvendt layout | Muligt (venstre/højre side) |
| Vinduer (træversion) | 2 × vinduer 1380 × 1050 mm |
| Døre (træversion) | 1 × glasdør 850 × 1920 mm, 1 × dobbelt dør 1615 × 1920 mm |
| Vinduer (PVC-version) | 2 × PVC vinduer 1200 × 1165 mm 1 × fast vindue 2000 × 1935 mm |
| Døre (PVC-version) | 1 × PVC dør 900 × 2043 mm |
| Stormbånd | Inkluderet |
| Glas | Dobbeltglas (PVC) |
| Anvendelse af studie | Havestudie, kontor eller værksted |
🚛 Leveringsbetingelser
Vi tilbyder gratis levering til aflæsningsstedet i følgende områder:
| 📍 | Jylland, Fyn, Sjælland samt øer forbundet med bro |
| ⚠️ | Modtageren er ansvarlig for aflæsning af varerne |
| 🚚 | Lift eller kran kan tilvælges mod et tillæg |
| 💰 | Alle priser er inkl. moms |
| 🌍 | Levering til Grønland og Færøerne: Momsen fratrækkes, og vi leverer til valgt terminal i Danmark |
🔗 Nyttige links
Samlevejledning (PVC-vinduer og fladt tag version): Download PDF



















































